- Блоки предохранителей и реле
- Основной блок
- Монтажный блок
- Для США
- рестайлинг, 5 поколение, 12.1999 — 08.2002, Седан
- Блок под капотом
- Как поменять предохранители Мазда 6
- Какие предохранители ставить на Мазда 6 GJ?
- Блок предохранителей и реле nissan primera
- Где находится блок предохранителей?
- Инструкция по снятию и замене
- Подготовка
- Шаги
- Изучаем предохранители Kia Sorento 1 (BL)
- Расшифровка блока под капотом
- Блок с предохранителями под капотом
- Схема — вариант 1
- Схема — вариант 2
- Схемы расположения реле и предохранителей на автомобилях Opel Vectra поколений B и C
- Блоки под капотом
- Основной блок
- Дополнительный блок
- Реле
- Обслуживание
- Блок с предохранителями под капотом
- Вариант 1
- Вариант 2
- Тест на разрыв цепи:
- Реле Ниссан Примера Где Находятся
- Назначение реле в монтажном блоке ниссан альмера классик
- Лёха & предохранители и реле в Mitsubishi Carisma
- Салонный блок предохранителей — бортжурнал Mazda 626 «Барбара» Американка 2002 года на DRIVE2
- Замена предохранителей
Блоки предохранителей и реле
Большинство автовладельцев с уверенностью могут ответить, что благодаря блокам предохранителей и реле обеспечивается безопасная и надежная эксплуатация автомобиля. Они будут правы, так как с помощью элементов, встроенных в рассматриваемые агрегаты, устраняется риск перегрева электрических цепей в результате скачков напряжений.
Таким образом, предохранители и реле отвечают за бесперебойную работу множества устройств, систем, датчиков и механизмов транспортного средства. Что касается Ситроен 5, то внутри данного автомобиля можно встретить следующие виды блоков:
- Основной. Находится под капотом и подразделяется на две части.
- Монтажный. Его можно встретить в салоне автомобиля.
 Стоит отметить, что ниже представленные данные относятся к блокам предохранителей и реле для первого поколения Ситроен 5.
Стоит отметить, что ниже представленные данные относятся к блокам предохранителей и реле для первого поколения Ситроен 5.
Основной блок
Как уже было сказано, данный блок находится под капотом транспортного средства. Ниже приводится схема расположения элементов блока первой и второй части, а также таблицы с расшифровкой основных предохранителей и реле.
| Обозначение | Назначение | 
|---|---|
| F1 | Отвечает за работоспособность электродвигателя вентилятора (реле). | 
| F2,9 | Регулирует подачу звукового сигнала. | 
| F4 | Обеспечивает включение и выключение омывателей лобового стекла. | 
| F5 | Регулирует работу топливного насоса. | 
| F6 | Отвечает за работоспособность электронного блока управления ABS. | 
| F8 | Обеспечивает работу стартера. | 
| F11 | Регулирует работу печки и кондиционера. | 

| Обозначение | Назначение | 
|---|---|
| F1 | Отвечает за работоспособность блока управления электродвигателем вентилятора. | 
| F2,3 | Регулирует работу антиблокировочной системы тормозов. | 
| F8 | Обеспечивает работу электроусилителя руля. | 
Монтажный блок
Найти этот блок можно под приборной панелью.
Ниже представлена схема расположения элементов, а также их расшифровка, сведенная в таблицу.
| Обозначение | Назначение | 
|---|---|
| 1 | Отвечает за работу противотуманных фар. | 
| 2 | Регулирует включение и выключение очистителя заднего стекла. | 
| 5.17 | Обеспечивает работу стоп-сигналов. | 
| 7 | Отвечает за прикуриватель. | 
| 14 | Регулирует блокировку центрального замка. | 
| 9, 15 | Обеспечивает работоспособность стеклоподъемников. | 
| 26 | Регулирует работу обогрева заднего стекла. | 
Для США
рестайлинг, 5 поколение, 12.1999 — 08.2002, Седан
| Комплектация | Период выпуска | Цена | Марка двигателя | Марка кузова | 
|---|---|---|---|---|
| 2.0 л, 130 л.с., Бензин, МКПП, Передний (FF) | ||||
| 2.0 MT LX | 01.2000 — 08.2002 | FS-DE | GF | |
| 2.0 л, 130 л.с., Бензин, АКПП, Передний (FF) | ||||
| 2.0 AT LX | 01.2000 — 08.2002 | FS-DE | GF | |
| 2.5 л, 165 л.с., Бензин, МКПП, Передний (FF) | ||||
| 2.5 MT ES | 01.2000 — 08.2002 | KL-ZE | GF | |
| 2.5 MT LX | 01.2000 — 08.2002 | KL-ZE | GF | |
| 2.5 л, 165 л.с., Бензин, АКПП, Передний (FF) | ||||
| 2.5 AT ES | 01.2000 — 08.2002 | KL-ZE | GF | |
| 2.5 AT LX | 01.2000 — 08.2002 | KL-ZE | GF | 
Двигатель FS в сборе на Mazda
                        Цена 43 000 р.
Двигатель Mazda, FS | Установка | Гарантия до 100 дней
                        Цена 33 000 р.
Двигатель Mazda FP | Установка | Гарантия до 100 дней
                        Цена 27 000 р.
Двигатель Mazda, FS | Установка | Гарантия до 100 дней
                        Цена 33 000 р.
АКПП коробка автомат мазда 626 GE 1992-97
                        Цена 15 000 р.
Двигатель Mazda, FP | Установка | Гарантия до 100 дней
                        Цена 32 000 р.
Блок под капотом
Устанавливается рядом с аккумулятором

Схема
Обозначение
- 30А Обогрев выпускного коллектора
- 30А Впрыск топлива
- 30А Аварийна сигнализация / 40А Омыватель фар
- 80А Главный предохранитель
- 60А Центральный замок, Генератор
- 30А Вентилятор
- 60А ABS — АБС
- 40А Вентилятор отопителя
- 15А Кондиционер
- Резерв
- 15А Полный привод
- 15А Фара ближнего света — левая
- 15А Фара ближнего света — правая
- 20А Фара дальнего света — левая
- 20А Фара дальнего света — правая
- 40А Вентилятор отопителя
- 30А Вентилятор
- Резерв
- 80А Основной предохранитель
- Резерв
- 30А Аварийная сигнализация
- 30А Вентилятор кондиционера
Рядом с данным блоком могут крепится как отдельные реле и так целый блок в зависимости от уровня электрического оснащения.
Как поменять предохранители Мазда 6
Нужно освободить фиксатор крышки блока предохранителей и снять крышку. С обратной стороны можно обнаружить запасные предохранители, щипцы для замены, и схему расположения предохранителей. Схемы также можно найти в руководстве по ремонту.
Щипцами следует ухватить нужный предохранитель и вытащить его из гнезда. Для проверки можно посмотреть на извлеченную деталь против света. Если нить внутри повреждена — предохранитель сгорел.
Впрочем, даже визуально целый предохранитель стоит заменить, раз уж потребитель, который он защищал, отказывается работать. Стоят предохранители довольно дешево.
Новый предохранитель должен же быть того же номинала (5A, 10A, 15A, 20A, и т.д.), что и сгоревший. Чтобы в этом было легче ориентироваться, предохранители окрашены в разные цвета.
Если проблема с потребителем (фары, эл.стеклоподъемники, освещение салона и другие) не устранилась, возможно имеется короткое замыкание или неисправен сам потребитель электричества.
Какие предохранители ставить на Мазда 6 GJ?
Оригинальный номер основного блока (в салоне) — GHP966730, средняя цена 1089 руб., блока предохранителей под капотом — D07A67S99B, средняя цена 2061 руб.
- 30А C244-67-S99 — 133 руб.
- 7,5А 9970-51-307 — 44 руб.
- 10А 9970-51-310 — 44 руб.
- 15А 9970-51-315 — 131 руб.
- 20А 9970-51-320 — 87 руб.
- 25А 9970-51-325 — 40 руб.
     
1
Блок предохранителей Мазда 6 2016 года под капотом.
       


4
Схема расположения предохранителей, щипцы для замены, запасные предохранители.
       

6
Схема расположения предохранителей со стороны моторного отделения.
       
7
Расшифровка назначений предохранителей со стороны двигателя.
       
8
Блок предохранителей в салоне под панелью слева.
       

12
13
Схема расположения предохранителей со стороны салона.
14
Расшифровка назначений предохранителей со стороны салона.
15
Взять щипцами нужный предохранитель.
17
Проверить целостность нити внутри предохранителя. Если она повреждена — нужно менять.
18
Вставить новый предохранитель.
19
22
Установить крышку в салоне.
Блок предохранителей и реле nissan primera
В обязательном порядке все цепи питания электрического оборудования на автомобилях Ниссан Примера Р11 и Р12 защищены при помощи электропредохранителей. Что же касается более мощных потребителей таких как наружное освещение, вентиляторы, то они защищаются при помощи реле. Защитные элементы находятся в специальных монтажных отсеках.
Несмотря на свои малые размеры предохранители играют очень важную роль и если какой-либо выходит из строя, то в некоторых случая становится невозможным функционирование всей системы. Предохранители спасут от возможного возгорания автомобиль, так как в случае короткого замыкания или превышения напряжения цепь будет разорвана и обесточена.
Где находится блок предохранителей?
- Большая часть предохранителей находится в салонном монтажном отсеке закрытым пластиковой крышкой, а также под капотом рядом с АКБ.
- Номера электропредохранителей в салонном отсеке.
- Электропредохранители, находящиеся в монтажном отсеке, могут иметь несколько другое расположение или полностью отсутствовать в зависимости от года выпуска транспортного средства.
- Номера электропредохранителей в моторном отсеке.
Инструкция по снятию и замене
Найти и заменить предохранитель дело несложно и по силам любому автолюбителю
Важно только внимательно прочитать предлагаемую нами инструкцию. Перед тем как перейти к изучению материала, посмотрите это видео
Подготовка
Пред тем, как перейти замену, внимательно изучите схему расположения электропредохранителей. Установите, в каком именно отсеке находится требуемый.
Для замены потребуется:
- отвертка;
- пинцет;
- набор новых предохранителей.
Шаги
Чтобы добраться до салонного отсека, нужно снять крышку. Устанавливается она плотно, поэтому может понадобиться приложить определенное усилие.
Реле, расположенные на лицевой стороне:
- обогрев заднего стекла;
- двигатель привода дроссельной заслонки;
- противотуманные фонари;
- стеклоподъемники.
Реле расположенные на обратной стороне:
- зажигание;
- добавочное оборудование;
- вентиляция, печь, кондиционер.
- Для того, чтобы добраться до блока электропредохранителей, находящегося под капотом, нужно отжать фиксатор.
- Снять крышку.
- Смотрим схему и находим, где расположен предохранитель, отвечающий за оборудование, которое не функционирует.
- После того, как он найден, можно переходить к его смене.
- Для этого берем пинцет и извлекаем предохраняющий элемент из его посадочного места.
- В комплекте с предохранителями находим аналогичный по номиналу. Чтобы проще было искать, нужно запомнить одно простое правило. Электроредохранители одного номинала окрашены одинаково. Ошибиться здесь трудно.
- Устанавливаем новый.
- Плавкая вставка меняется также просто. Нужно просто ее потянуть, пошатывая из стороны в сторону.
- После того, как перегоревшая вставка извлечена, ставим новую аналогичную по амперажу.
Изучаем предохранители Kia Sorento 1 (BL)
Главная ›KIA› Sorento
Реле и предохранители Kia Sorento I обеспечивает стабильную и безопасную работу электрооборудования.
Рассмотрим, где расположены блоки предохранителей Киа Соренто первого поколения, какое оборудование отвечает за защиту, все равно будут структурные схемы.

Расшифровка блока под капотом
Давайте выясним, где именно в моторном отсеке находится блок предохранителей Kia Sorento первого поколения (выпускался в 2002, 2003, 2004, 2005, 2006, 2007, 2008 и 2009 годах). Устанавливается с левой стороны крыла, рядом с аккумулятором. Расположение реле и предохранителей практически идентично Kia Sorento с бензиновыми или дизельными двигателями.

Блок-схема состоит из следующих элементов защиты:
- FUEL — реле топливного насоса;
- HORN — часть реле цепи питания сигнала;
- HEAD (HI / LO) — дальний / ближний свет фар;
- H / LP WASH — передний омыватель оптики Kia Sorento (20А);
- H / BURN — на моделях Kia Sorento с дизельным двигателем внутреннего сгорания: топливный обогрев салона (20А);
- ECU — ЭБУ силового агрегата (10А);
- 02 (DN / UP) — датчик задний / передний;
- П / ТРН — главное реле, источник постоянного тока (10А);
- P / W (LH / RH) — операция подъема окон с левой / правой стороны (25А);
- DEF — обогрев заднего стекла (25А);
- ГЛАВНЫЙ — генератор (120А);
- IGN1 — замок зажигания (40А);
- IGN2 — выключатель зажигания и релейная часть цепи питания стартера (30А);
- ABS — антипробуксовочная (40А);
- F / BLW — реле вентилятора радиатора (30А);
- F / FOG — часть реле цепи питания передней противотуманной фары;
- F / ОБОГРЕВАТЕЛЬ — Kia Sorento с дизельным двигателем: подогрев элемента топливного фильтра (30А);
- ИНЖЕКТОР — регулятор управления двигателем, EGR, реле зажигания и подогрева воды;
- БТН1 — розетка, цепи питания предохранителей STOP, ROOM, TCCS (40А);
- БТН2 — система обогрева первого ряда сидений, задних противотуманных фар, электропривод регулировки водительского сиденья (20А);
- БТН3 — цепи питания предохранителей S / Roof, W / SHD, OBD-II, D / Lock Hazard (40A);
- CD / FAN (C / FAN2) — релейная часть вентилятора радиатора и климатической системы (на некоторых комплектациях Kia Sorento предохранитель климатической системы также устанавливается непосредственно рядом с вентилятором кондиционера) (30А);
- ПАМЯТЬ — программы кондиционирования и управления ECAT, центральная система сбора данных, ETACS, многофункциональный счетчик (10А);
- АУДИО — мультимедийный комплекс, задний дворник, десятиамперный предохранитель блока памяти (20А);
- EXT — габариты, фонари заднего хода, освещение номерного знака, реле противотуманных фар;
- ИЛЛЮМИ — мультимедийный комплекс, прикуриватель, стеклоочиститель и стиральная машина задней части, ДХО, фонарь аварийной остановки, селектор передач, кнопочный командный пункт узла подъема стекол, обогрев заднего стекла, централизованный сбор информации комплекс, часы, многофункциональный счетчик (10А).

Большинство предохранителей Kia Sorento I в моторном отсеке рассчитаны на пятнадцать ампер. К ним относятся элементы, представленные выше, без указания текущего рейтинга.
На дизеле Kia Sorentos под капотом установлен еще один блок с предохранителями, который состоит из следующих элементов:
- GLOW 1, 2 — свечи (60А);
- Ж / ВТ 1, 2, 3 — водонагреватель (30А).
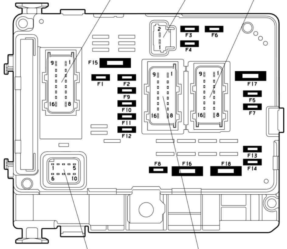
Блок с предохранителями под капотом
Схема — вариант 1

Описание
| F1 | 20А | 
| F2 | 10А Не используется | 
| F3 | 30/40А Вентилятор системы охлаждения | 
| F4 | Не используется | 
| F5 | 5А Вентилятор системы охлаждения | 
| F6 | 30А Омыватель фар, передние противотуманные фары | 
| F7 | 5А Форсунки | 
| F8 | 20А Не используется | 
| F9 | 10А Реле топливного насоса | 
| F10 | 5А Не используется | 
| F11 | 5А Реле кислородного датчика | 
| F12 | 10А Дальний правый свет | 
| F13 | 10А Дальний левый свет | 
| F14 | 10А Правый ближний свет | 
| F15 | 10А Левый ближний свет | 
A (20A) Система центрального блокирования замков В (25А) Очиститель ветрового стекла С (30А) Обогреватель заднего стекла и наружных зеркал заднего вида D (15A) Комрессор системы кондиционирования воздуха, очиститель заднего стекла E (30A) Люк, стеклоподъемники передних и задних дверей F (15А) Питание мультиплексной системы
Схема — вариант 2

Расшифровка 1 вариант
- F1 (10A) модуль предварительного обогрева — датчик скорости автомобиля — электро — гидравлический блок АКПП — группа управления автоматической коробкой передач — контакт фонарей заднего хода — контактная пара датчика уровня охлаждающей жидкости двигателя — реле питания вентилятора на высокой скорости — воздушный расходомер — реле управления приводного механизма блокировки рычага переключения скоростей — реле запрета запуска двигателя
- F2 (15A) насос топливной системы
- F3 (10A) калькулятор антиблокировки колеса — калькулятор контроля стабильности
- F4 (10A) калькулятор системы впрыска — компьютер автоматической коробки передач
- F5 (10A) компьютер автоматической коробки передач
- F6 (15A) противотуманные фары
- F7 омыватель фар
- F8 (20A) калькулятор системы впрыска — Регулятор высокого давления дизельного топлива — реле питания вентилятора на низкой скорости
- F9 (15A) левая фара — переключатель корректора луча фар
- F10 (15A) правая фара
- F11 (10A) левая фара
- F12 (10A) правая фара
- F13 (15A) звуковая сигнализация
- F14 (10A) насос переднего / заднего омывателя
- F15 (30A) катушка зажигания — Кислородный датчик на выходе: не характеризуется — Кислородный датчик на входе — Инжектор цилиндра 1 — Инжектор цилиндра 2 — Инжектор цилиндра 3 — Инжектор цилиндра 4 — Электроклапан очистки резервуара — насос высокого давления впрыска дизельного топлива — электроклапан РВГ + заслонка — сопротивление системы обогрева карбюратора или модуля заслонки — логический электроклапан (РВГ) — Система подогрева топлива
- F16 (30A) насос системы подачи воздуха
- F17 (30A) привод очистителя ветрового стекла
- F18 (40A) привод системы подачи воздуха — модуль управления системой подачи воздуха — терморезистор воздуха в салоне — сервисная панель — модуль предохранителей в моторном отсеке
Расшифровка 2 вариант
(20A) Звуковой сигнал (30A) Реле ближнего света фар (30A) Вентилятор системы охлаждения двигателя (20A) Диагностический разъем, питание ECU 1.6 л (30A) Не используетcя (10A) Не используется (10A) Реле вентилятора системы охлаждения двигателя (5A) Не используется (25A) Центральный замок (BSI) (15A) Блок управления ABS (5А) Система предварительного прогрева (дизель) (15A) Топливный насос (40A) Реле (30A) Реле (10A) Вентилятор системы охлаждения двигателя (40A) Воздушный насос наддува воздуха (10A) Правая противотуманная фара (10A) Левая противотуманная фара (10A) Датчик скорости (15A) Датчик температуры охлаждающей жидкости (5A) Каталитический нейтрализатор
Схемы расположения реле и предохранителей на автомобилях Opel Vectra поколений B и C
Автоэксперт. Консультант сайта opelpro.ru.
Обнаружение неисправностей в электрических цепях современных автомобилей – непростая задача даже для подготовленного профессионала. Что до рядовых автомобилистов, то у них могут возникнуть проблемы ещё на этапе поиска вышедших из строя реле и перегоревших предохранителей.
Основные проблемы рождает недостаток информации. Эта статья, посвящённая автомобилям Opel Vectra поколений B и C, позволит удовлетворить существующий информационный голод. Изучив её, автовладельцы получат возможность узнать, где на их машинах расположены и за что отвечают реле и предохранители.
Для того чтобы сделать информацию более наглядной, статься дополнена подробными схемами. Не заблуждайтесь, полагая, будто по ошибке авторов схемы повторяются. В зависимости от конкретного года выпуска Опель Вектра и комплектации популярной модели, компоненты могут размещаться по-разному.
Блоки под капотом
В моторной отсеке могут устанавливаться несколько блоков с предохранителями и реле:
- Основной блок
- Дополнительный
- Реле

Основной блок
Расположен в левой части подкапотного пространства, рядом с аккумулятором. Актуальное назначение будет на Вашей защитной крышке.
Схема

Назначение
- MAIN — 100A главный предохранитель
- HAZARD — 30A аварийная сигнализация
- DEFOG — 40A обогрев заднего стекла
- EJI INJ — 30A система впрыска топлива
- F.FOG RELAY — реле передних противотуманных фар
- COLING FAG RELAY NO1 — реле вентилятора охлаждения
- STOP — 30A лампы стоп-сигналов
- BTN — 60A дверные замки, электропривод сидений
- ABS — 60A анти блокировочная система тормозов (АБС)
- COLING FAG — 30A вентилятор охлаждения
- HEATER — 40A отопитель, кондиционер
- AIR COND — 30A кондиционер
- AIR COND RELAY — реле кондиционера
- HORN RELAY — реле звукового сигнала
- DIM LH — 15A ближний свет левой фары
- DIM RH — 15A ближний свет правой фары
- R.FOG — 15A задние противотуманные фары
- COMB SW — 15A под рулевые переключатели поворотов и дворников
- R.FOG RELAY — реле задних противотуманных фар
- EGI MAIN RELAY — реле управления двигателя
- CIRCUIT RELAY — реле бензонасоса
Дополнительный блок
Схема

Обозначение
- TAIL LH — 15A Габариты левые
- TAIL RH — 15A Габариты правые
- MAIN LH — 15A Фара левая
- MAIN RH — 15A Фара правая
- HORN — 15A Сигнал
- FOG — 20A Противотуманные фары
Реле
В зависимости от региона поставки отдельные реле находятся как около основного блока так и с правой стороны моторного отсека.

Тут могут устанавливаться реле вентиляторов системы охлаждения, реле обогрева, реле противотуманных фар и т.д.
На этом мы заканчиваем статью. А если Вам есть чем её дополнить, то мы будем рады Ваши комментария.
Обслуживание
Электроцепи на Мазда 626 защищены набором предохранителей, выключателей и перемычек.
Предохранители выполняют огромную задачу в системе электропитания автомобиля. Каждый предохранитель отвечает за свой участок электрической цепи. Выход из строя этой малоприметной детали грозит неполадками во всей системе в целом. Мини-предохранители располагаются в блоке предохранителей.
Эти блоки находятся на левой стороне приборов и под панелью с водительской стороны.
Еще одним важным элементом электрооборудования является реле для передачи электросигналов. В электросистеме Мазда 626 при помощи реле функционируют указатели поворотов, таймер замков, звуковой сигнал, подфарники, прочая оптика, стеклоочистители.
Блок с предохранителями под капотом
Вариант 1

p, blockquote 8,0,0,0,0 —>
| 1 | 10 A | Фонари заднего хода — Датчик наличия воды в дизтопливе — Охлаждающая жидкость | 
| 2 | 15 A | Цепь питания топливного насоса | 
| 3 | 10 A | Электронный блок управления (ЭБУ) системы АБС | 
| 4 | 10 A | Двигатель (ЭБУ) — ЭБУ АКПП | 
| 5 | 10 A | BVA — Присадки в дизтопливо | 
| 6 | 15 A | Противотуманные фары | 
| 7 | 15 А | Автоматическое освещение | 
| 8 | 20 A | Двигатель (ЭБУ) | 
| 9 | 15 A | Лампа ближнего света левой фары | 
| 10 | 15 A | Лампа ближнего света правой фары | 
| 11 | 10 A | Левая фара дальнего света | 
| 12 | 10 A | Правая фара дальнего света | 
| 13 | 15 A | Звуковой сигнал | 
| 14 | 10 A | Передний и задний стеклоомыватели | 
| 15 | 30 A | Датчики двигателя, катушки зажигания, инжекторы, Электромагнитные клапана | 
| 16 | 30 A | Воздушный насос | 
| 17 | 30 A | Передний стеклоочиститель | 
| 18 | 40 A | привод системы подачи воздуха, сервисная панель | 
С боку блока отдельно размещены макси предохранители.

p, blockquote 10,0,0,0,0 —>
- MF1 (20-80A) реле питания вентилятора на низкой скорости, реле питания вентилятора на высокой скорости
- MF2 (20-80A) калькулятор антиблокировки колеса — калькулятор контроля стабильности
- MF3 (20-80A) калькулятор антиблокировки колеса
- MF4 (20-80A) интеллектуальный сервисный модуль
- MF5 (20-80A) интеллектуальный сервисный модуль
- MF6 (20-80A) модуль 12 предохранителей в салоне
- MF7 (20-80A) Замок зажигания
- MF8 (20-80A) система обогрева жидкости
Вариант 2
Общая схема

Расшифровка схемы
p, blockquote 13,0,0,0,0 —>
- MF1 70A +BB питание СМ (интеллектуальный сервисный модуль) — очиститель ветрового стекла — заднее стекло с обогревом — блокировка
- MF2 70A группа вентилятора (P)
- MF3 60A группа вентилятора (P)
- MF4 60A антиблокировка колес (A)
- F5 20A звуковая сигнализация
- F6 30A реле фар ближнего света (P)
- F7 30A реле цепи низкой скорости вентилятора (TU5JP/L3) с системой охлаждения
- MF8 70A модуль 28 предохранителей в салоне (A)
- MF9 50A питание СМ (интеллектуальный сервисный модуль) — Указатели поворотов — стеклоподъемник — люк — + VAN — задний стеклоочиститель — компрессор системы охлаждения
- MF10 40A Управление освещением (A)
- MF11 Свободный
- MF12 70A контакт противоугонной системы (+AA, +CC, +D) (A)
- MF13 40A контакт противоугонной системы (+KK) (A)
- F14 20A диагностический разъем — питание калькулятора (TU5JP)
- MF15 Свободный
- MF16 40A модуль 28 предохранителей в салоне (A)
- MF17 30A форсунка дополнительной системы обогрева (A)
- F18 питание (через сдвоенное реле) Свободный
- F19 Свободный
- F20 10A +CC реле вентилятора (все типы кроме TU5JP/L3 и EW7J4) (база)
- F21 + BB Свободный
- F22 25A Указатели поворотов
- F23 15A + CC калькулятор антиблокировки колеса
- F24 5A Компьютер управления двигателем (A) — модуль предварительного обогрева — расходомер — модуль блокировки защиты 3 реле
- F25 15A питание (через сдвоенное реле) топливный насос
- F26 40A + BB Двухпозиционное реле (P)
- F27 30A Двухпозиционное реле (P)
- F28 5A питание (через сдвоенное реле) сопротивление системы обогрева карбюратора или модуля заслонки (TU5JP/L3)
- F29 40A — (5A) + BB воздушный насос (EW7) (A) — сигнализатор системы дополнительного обогрева (DW10)
- F30 10A правая противотуманная фара (P)
- F31 10A левая противотуманная фара (P)
- F32 10A + CC датчик скорости автомобиля — контакт фонарей заднего хода — модуль блокировки защиты 3 реле
- F33 15A модуль температуры жидкости (TU5JP) — диагностический разъем — Система подогрева топлива — контактная пара датчика уровня охлаждающей жидкости двигателя (DW10TD)
- F34 5A питание (через сдвоенное реле) кислородный зонд — Электроклапан очистки резервуара (бензин) — электроклапан РВГ — электромагнитный клапан (топливный насос дизельного двигателя)
Тест на разрыв цепи:
- Один конец провода с отрицательным зажимом тестера (пробника с индикатором) подсоединяют к отрицательной клемме аккумулятора.
- Второй зажим закрепляют на конце проверяемой цепи, как можно ближе к гнезду разъёма предохранителя.
- Цепь включают, задействовав проверяемый элемент электрооборудования: если напряжение стабильное 12В, то цепь исправна, если подача питания отсутствует, то переходят к проверке следующего участка. При этом стоит помнить, что некоторые электроприборы включаются только при подключенном зажигании (положение ключа в замке зажигания «ON»).
Обнаруженный неисправный участок проводки заменяют полностью по всей длине от источника до потребителя. Часто причиной отсутствия напряжения бывает плохой контакт на разъёме из-за образовавшегося окисла, его зачищают мелкозернистой шкуркой, протирают насухо и проводят диагностику вновь.

Реле Ниссан Примера Где Находятся
Nissan Primera
выпускался в 3 поколениях с кузовами автомобиль, универсал и лифтбэк. 1-ое поколение — p10, выполнялось в 1990, 1991, 1992, 1993, 1994, 1995 годах. 2-ое — p11, в 1996, 1997, 1998, 1999, 2000 годах.
Третье — p12, в 2001, 2002, 2003, 2004, 2005, 2006 и 2007 годах. Мы представим информацию с описанием блоков предохранителей и реле ниссан примера p11 и p12 (2 и 3 поколения), их фото, схемы и предназначение частей.
Раздельно отметим предохранители прикуривателя.
Схема размещение электрических блоков, предохранителей и реле
- блок предохранителей;
- реле-прерыватель;
- выключатель стоп-сигналов;
- щиток устройств;
- реле динамиков;
- реле омывателя фар;
- реле динамиков;
- противоугонная система (иммобилайзер);
- корректор фар;
- реле кодового фонаря;
- блок управления подушками безопасности;
- блок управления Коробка автомат;
- блок управления движком;
- реле кондюка;
- реле топливного насоса;
- реле противотуманок;
- реле электростеклоподъемников;
- реле обогревателя заднего стекла;
- кронштейн блока предохранителей;
- реле охранной сигнализации;
- реле-прерыватель;
- реле бухгалтерской системы зажигания;
- реле-прерыватель;
- реле вентилятора обдува салона
С верхней части вниз, с лева на права.
- Мотор вентилятора
- Кондюк
- Приборная панель
- INJ (Система впрыска)
- Электрические составляющие/ лампа салона
- Мотор вентилятора
- Сигналы поворота
- Топливный насос
- Подушки безопасности
- Датчик кислорода и холостого хода
- Датчик скорости
- Размораживатель стекла заднего (при наличии)
- Электрические составляющие приборной панели
- Прикуриватель
- Абс
- Сигнал стартера
- Задняя щетка
- Противотуманки
- Зеркала
- Стоп сигналы
- Щетки
- Дополнительная розетка
- Аудиосистема
- Управление Коробка автомат
- Аварийная сигнализации
Назначение реле в монтажном блоке ниссан альмера классик
- За прикуриватель отвечает предохранитель 3-й сверху предохранитель средняя ряду на 15А.
- Таблица — схема
- Таблица с обозначением
За прикуриватель отвечает предохранитель 2-ой по счету предохранитель в верхнем ряду на 15А. На рисунке обведен красноватым.
- блок предохранителей под капотом;
- блок управления Абс;
- блок реле;
- электродвигатель очислителя ветрового стекла;
- реле подготовительного разогрева для автомобилей с дизельным движком;
- реле левой фары;
- реле звукового сигнала;
- реле вентилятора обдува радиатора;
- реле блока управления движком;
- реле вспомогательного оборудования;
- реле 1 вентилятора обдува радиатора;
- реле 4.5 вентилятора обдува радиатора;
- реле нейтральной передачи;
- реле кондюка;
- реле очистителя заднего стекла;
- реле правой фары;
- реле очистителя ветрового стекла
Пример фото блока с реле.
Количество частей и их предназначение может отличаться, от представленного. Животрепещущая расшифровка будет нанесена на крышку.
Фото — схема
Фото — схема
Лёха & предохранители и реле в Mitsubishi Carisma
Перевод обозначений на российский
- hazard — аварийная сигнализация
- horn — сигнал звука
- alt s — сигнал возбуждения обмотки генератора
- tail — задние габариты
- абс sol — соленоид abs
- ign sw — вкл. зажигания
- абс mtr — мотор abs
- battery — аккумулятор
- h/lamp rh — правая фара
- h/lamp lh — левая фара
- audio — магнитола
- eng cont — блок управления движком
- ign coil — катушка зажигания
- throt motor — привод дроссельной заслонки
- inj — что-то про инжектор
- hid rh — ксенон правый
- hid lh — ксенон левый
- rr defog — задние противотуманки
- rad fan 1,3.5,3 — пропеллер радиатора 1,2.4,3
- main — основной пред хз куда
- power window — эл. стеклоподъёмники
Находится в панели устройств за защитной крышкой, на оборотной стороне занят будет нанесена животрепещущая схема с расшифровкой частей.
Салонный блок предохранителей — бортжурнал Mazda 626 «Барбара» Американка 2002 года на DRIVE2
Продолжаем расшифровку предохранителей. Теперь салонный блок, который в ногах у водителя.

Обозначение на крышке

Мои предохранители

Общая схема с обозначением
Ну и теперь расшифровка:1 AUDIO — номинал 15A, аудио система2 ROOM — номинал 15A, салонное освещение, освещение в багажнике3 S.ROOF — номинал 15A, люк4 METER — номинал 10A, датчики и огни заднего хода5 D.LOCK — номинал 30A, привода дверных замков6 HAZARD — номинал 15A, аварийные огни7 A/B&ABS — номинал 10A, подушки безопасности, анти блокировочная система8 — — —9 A/C — номинал 10A, кондиционер10 — — —11 TURN — номинал 10A, указатели поворотов12 WIPER — номинал 20A, Дворники и стеклоочестители13 P.WIND — номинал 30A, стеклоподъемники14 — — —15 RADIO — номинал 15A, аудио система, уличные боковые зеркала16 ENGINE — номинал 10A, система управления двигателем17 ILLUMI — номинал 10A, подсветка номера, габариты, приборная панель18 STOP — номинал 15A, стоп сигналы, звуковой сигнал, круиз контроль19 CIGAR — номинал 15A, прикуриватель, часы, радио, боковые зеркала20 — — —21 — — —22 P.SEAT — номинал 30A, электропривода сидений23 M.DEF — номинал 15A, Подогрев зеркал
24 P.POINT — номинал 15A, прикуриватель
Замена предохранителей
При неисправности какого-либо электроприбора на автомобиле следует, прежде всего, обратить внимание на предохранители. Менять перегоревший предохранитель нужно только после выявления причины его выхода из строя и при полной уверенности в том, что «защитник» действительно перегорел. Как правило, основная причина перегорания – это короткое замыкание
Для замены предохранителя необходимо выполнить следующий порядок действий:
Как правило, основная причина перегорания – это короткое замыкание. Для замены предохранителя необходимо выполнить следующий порядок действий:
- Отключить питание, скинув клеммы с аккумулятора, и заглушить двигатель.
- Устранить причину перегорания предохранителя.
- Заменить предохранитель на новый с соответствующим номером и силой тока.
- Подключить клеммы к аккумулятору и завести двигатель.
В результате следует сказать, что при замене предохранителей необходимо соблюдать меры безопасности. Не нужно вытаскивать их металлическими предметами. Кроме этого, специалисты рекомендуют хотя бы один раз в три месяца проводить визуальный осмотр всех блоков с предохранителями.

Внимательное отношение ко всем узлам автомобиля Мазда 626 является залогом успешного управления и гарантией того, что машина прослужит без каких-либо серьезных поломок на протяжении длительного времени.

























